테슬라, LA에 세미트럭을 위한 첫 상용 전기트럭 충전소 건설…대형 라운지·편의시설 갖춘다
ev
0
307
0
2025.02.18 22:06
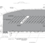
테슬라가 로스앤젤레스 인근 카슨시에 첫 상업용 전기트럭 ‘메가차저’ 충전소를 건설한다. 최근 공개된 건축 허가 신청서에 따르면, 트레일러를 포함한 대형 전기트럭의 충전이 가능한 12개의 충전 스테이션이 들어설 예정이다.
특히 이 충전소에는 약 149제곱미터(1,600 스퀘어피트) 규모의 편의시설동이 함께 건설된다. 운전자 라운지, 자판기, 화장실과 직원 주차장 등이 포함된다.
위치는 405번과 110번 고속도로가 교차하는 지점 인근으로, 롱비치 항구와도 가까워 물류 운송에 전략적 요충지로 평가받는다. 메가차저는 1메가와트 이상의 충전 출력을 제공할 것으로 예상되며, 테슬라 세미 트럭은 30분 충전으로 최대 주행거리(800km)의 70%를 회복할 수 있다.
테슬라는 현재 기가팩토리 네바다 인근에 세미 트럭 전용 생산라인을 구축 중이다. 올해 말부터 본격적인 양산에 들어갈 예정이며, 내년부터는 생산량을 대폭 늘릴 계획이다. 현재는 테슬라 자체 물류용과 일부 고객사에 납품된 수십 대만이 운행 중이다.
기존 메가차저는 기가팩토리 네바다 부지 내에 설치돼 자사 물류용으로만 사용됐으나, 이번 LA 충전소는 모든 테슬라 세미 트럭 운전자에게 개방되는 첫 상업용 시설이 된다.


















